Alternativ text
Alternativ text
  • Werk
    • Auswahl
    • Gebaut
    • In Planung
    • Wettbewerbe
  • Studio
    • Team
    • News
    • Jobs
    • Kontakt

Wettbewerb / Luzern / 2014

HFGZ - Höhere Fachschule Gesundheit

Das Spital-Quartier ist geprägt durch eine heterogene Bebauung. Grossmassstäbliche Baukörper wechseln sich mit punktförmigen Solitärbauten ab, welche wiederum unmittelbar neben linearen Zeilenbauten stehen. Die Spitalstrasse bildet dabei das Rückgrat des Quartiers, an welcher sich perlenkettenartig die verschiedenen Bautypologien aufreihen.

Der Neubau bildet zusammen mit dem punktförmigen Hochhaus, der flächigen Garage sowie dem angrenzenden quer stehenden Volumen eine in Höhe und Tiefe gestaffelte Komposition und ein neues Ensemble. Dadurch entsteht ein dem Spital vorgelagerter spannungsvoller Strassenabschnitt, welcher dem Ort einen eigenständiger Charakter verleiht.

Durch die Setzung des schlanken Gebäudevolumens an dem Nordrand des Perimeters entsteht ein Rücksprung und eine Distanz zur Strasse, welche auf einfache Art einen platzartige Aussenraum generiert, der das neue Gesicht der Schule bildet.

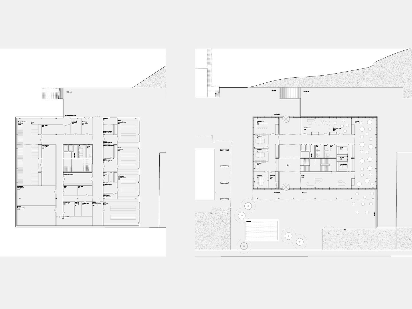
Die städtebauliche Setzung findet im Innern ihre Entsprechung:

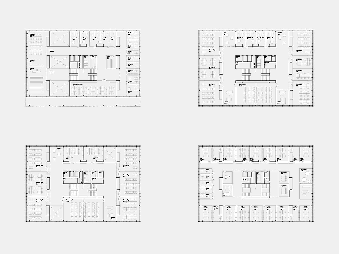
Die öffentlichen Funktionen befinden sich im Erd- und 1. Obergeschoss und bildet mit  zweigeschossigen Raumfiguren einen prägnanten Sockel. Das Foyer erstreckt sich Einerseits in die Tiefe und verbindet die Strasse mit der Rückwertigen Raum zum Spital, Andererseits entlang der zweigeschossigen Arkade parallel zum Vorplatz. Darüber befinden sich auf drei gleichbleibenden Geschossen die Schulräume welche durch zwei grosszügige Hallen strukturiert werden. Die Lerninseln befinden sich in den nord- südorientierten Hallen, welche alternierend 2-Geschossige Bereiche schaffen und so unterschiedlichste Orte und ein reiches „Innenleben“ schaffen. Der Abschluss bildet die kleinteilige Struktur der Lehrpersonenarbeitsplätze. Eine 4-läufige Treppenanlage verbindet alle Geschosse miteinander und schafft mit einem spielerischen Element sowohl eine einfache Entfluchtung wie auch eine offene Kommunikationszone im Zentrum des Schulgebäudes.

Kantonsspital 41, 6000 Luzern
  • Büro

    BUR Architekten

  • Wettbewerb Team

    Philipp Oesch, Ekaterina Cazan

  • Wettbewerb

    2014, 2. Rang

  • Fläche SIA 416

    10'500 m2

  • Bauingenieur

    Schnetzer Puskas Ingenieure

  • Visualisierung

    nightnurse images

Ort
  • BUR ARCHITEKTEN AG
  • FLÜELASTRASSE 10
  • CH-8048 ZÜRICH
  • T+41 44 295 60 00
  • MMAIL@BURARCHITEKTEN.CH
Alternativ text
Impressum